【ホテルライクなデザインのお家】

価格 | 3,599万円(土地+建物) |
---|---|
住所 | 木更津市岩根 |
建物面積 | 97.91m²(29.55坪) |
土地面積 | 202.99m²(61.28坪) |
交通 | JR巌根 徒歩 (徒歩20分) |
限定1棟のみ モデルハウスの特別仕様のお家を販売いたします。
ホテルライクのシンプルなデザイン、温かみのある自然素材にこだわったモデルハウス仕様のお家をお得な価格で販売いたします。
オープンキッチンでリビングでくつろぐ家族の様子を見ながら楽しくお料理。
キッチンと一体型のダイニングテーブルで家事ラクな家事動線にもこだわり子育て世代にぴったりのお家です。


【ホテルライクなデザインのお家】に関するお問い合わせはこちら
周辺環境
物件概要
住所 | 木更津市岩根 | ||
---|---|---|---|
価格 | 3,599万円 | ||
建物面積 | 97.91m²(29.55坪) | ||
土地面積 | 202.99m²(61.28坪) | ||
交通 | JR巌根 徒歩 (徒歩20分) | ||
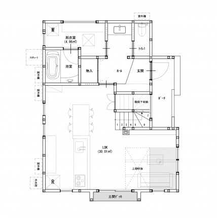
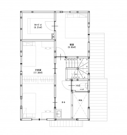
間取り | 3SLDK | 駐車場 | 3台以上 |
地目 | 宅地 | 用途地域 | 市街化調整区域 |
建ぺい率 | 60% | 容積率 | 200% |
設備 | 公営水道、都市ガス、公共下水 | 道路 | 前面道路6m以上 |
構造・工法 | 在来工法 | 完成時期 | 2025年12月 |
入居時期 | 2026年12月 | 取引形態 | 売主 |
建築条件 | -- | ||
備考 | -- | ||
情報登録日 | 2025.09.20 | 最終更新日 | 2025.10.14 |